Groen Kruis-partners starten werken in Groenzone Merksem
In Merksem zijn de werken gestart in de groenzone tussen de E19 en de IJsvogelstraat. Provincie Antwerpen, district Merksem en Regionaal Landschap de Voorkempen richten er een verwaarloosd stuk groen in met onder meer wandelpaden, picknickbanken en een vernieuwde hondenweide. De bunker op het terrein is onlangs opgenomen in de inventaris onroerend erfgoed en blijft behouden.
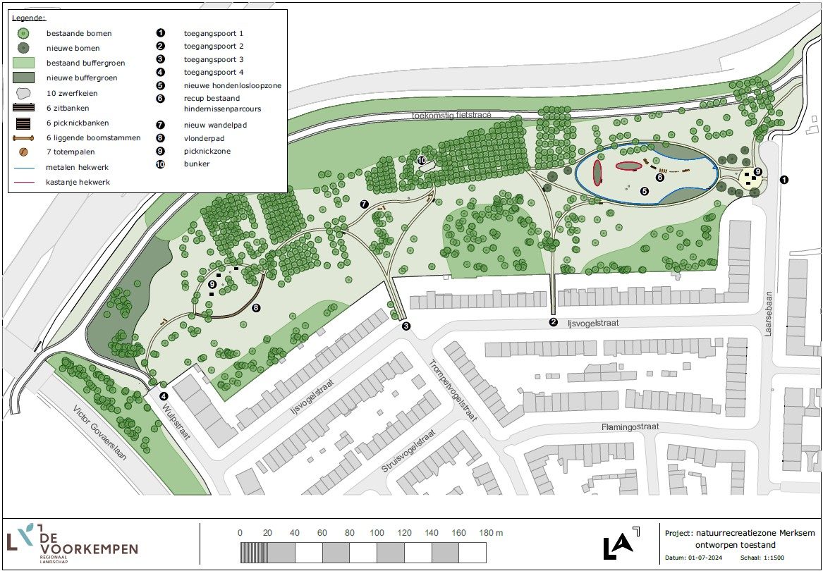
Tussen de E19 en de IJsvogelstraat in Merksem, in de stadsrand van Antwerpen, ligt een wat vergeten groengebied van om en bij 515 are. De watergevoelige zone is sinds 2007 deels ingekleurd als parkgebied en deels als recreatiegebied, met een bufferzone langsheen de snelweg. In 2012 zijn er groepjes bomen aangeplant en kwam er een hondenweide. Sindsdien is de zone echter onaangeroerd gebleven en geraakte ze volledig verwilderd. District Merksem, Regionaal Landschap de Voorkempen en de provincie Antwerpen willen het gebied nu beter toegankelijk maken.
In eerste instantie maakte de aannemer enkele paden vrij in het gebied. Het gaat hierbij om gemaaide graspaden, zonder verharding. Op die manier blijft de natuurlijke omgeving zo veel mogelijk behouden. Het Groen Kruis-project wil de zone beter toegankelijk te maken zodat buurtbewoners er op een aangename manier de natuur kunnen beleven, terwijl we het al aanwezige groen zo veel mogelijk behouden blijft.
Waardevolle bomen behouden
De ploeg ter plaatse houdt dan ook rekening met wat er nu al is. Zo kreeg het graspad enkele extra bochten, waardoor een oude appelaar en enkele andere waardevolle bomen behouden kunnen blijven.
Landschapsarchitect Frank Van Baelen van Regionaal Landschap de Voorkempen licht de plannen die hij uittekende toe: “‘Harde’ structuurwerken blijven beperkt. In het nattere deel van de zone sluit het gemaaide pad aan op een vlonderpad. In het gebied komen ook enkele picknickbanken, terwijl losliggende boomstammen en grote speelkeien uitnodigen tot spel. Houten palen geven de vier toegangen tot het terrein beter aan. De hondenweide wordt vergroot en krijgt nieuwe speeltoestellen en een aparte toegang met een sas.”
Op verschillende plaatsen komen nieuwe aanplantingen en hoogstammige bomen. Zo komt er een gemengde inheemse haag rond de hondenloopzone. In het verlengde van de Wulpstraat moet een nieuwe groenbuffer een betere afscherming bieden tegen de E19.

De bunker op het terrein is recent toegevoegd aan de inventaris onroerend erfgoed. Het gaat om een Duitse ‘Feldmassige Ausbau’-schuilbunker uit de Tweede Wereldoorlog en is de enige van zijn type die in de inventaris is beschreven. Onder meer om die reden is beslist om de bunker te behouden. Om veiligheidsredenen wordt de toegang tot de bunker wel afgesloten.
Nadat grondwaterstalen er eind vorig jaar een PFAS-verontreiniging in het grondwater aantoonden, is het voorontwerp voor de natuurzone aangepast. De voorziene waterelementen zoals het waterspeellint en de aanleg van een waterbufferingsgebied zijn daarbij geschrapt en worden niet langer uitgevoerd. Op die manier komen de bezoekers niet in aanraking met de grondwaterverontreiniging
Tijdens de werken is plaatselijk hinder mogelijk. De huidige hondenloopzone zal tijdelijk niet toegankelijk zijn.

Natuurverbinding met de buurt én met de wijde omgeving
De zone ligt op een heel interessante plek: vlakbij natuurgebied de Oude Landen en het Fort van Merksem. In de ruimere omgeving vind je ook de Bospolder, het Peerdsbos en het toekomstige Ringpark Groenendaal. De zone is zo een belangrijke schakel in de grote verbinding tussen al deze groengebieden. Toch is het gebied niet opgenomen in naburige grote infrastructuurwerken zoals Ringpark Groenendaal en het spoorproject Oude Landen. Ook daarom hebben de Groen Kruis-partners het initiatief genomen om er een zinvolle invulling voor de buurt én voor de wijdere omgeving van te maken.
District Merksem, de provincie Antwerpen en het Agentschap voor Natuur en Bos van de Vlaamse overheid financieren samen dit project. Regionaal Landschap de Voorkempen coördineert de uitvoering op het terrein.
De financiering vanuit het Vlaams Agentschap voor Natuur en Bos kadert in de projectoproep ‘Natuur in je Buurt’. Met deze oproep ondersteunt het Agentschap realisaties die bijdragen aan een duurzame biodiverse natuur én aan welzijn, klimaatadaptatie of natuurbeleving.
De provincie Antwerpen financiert het project vanuit het gebiedsprogramma Groen Kruis, dat verbindingen voor mens, dier en natuur creëert in de verstedelijkte rand rond Antwerpen.
Het ontwerp voor de natuurrecreatiezone Merksem is te bekijken op de webpagina van district Merksem.